Maison Neuve en L 3 chambres 1 bureau et double garage



Superbe maison neuve modèle en L de plein pied avec garage qui allie modernité, confort et fonctionnalité.
Parfaitement conçue pour répondre aux besoins d'une famille, elle offre des espaces optimisés et lumineux.
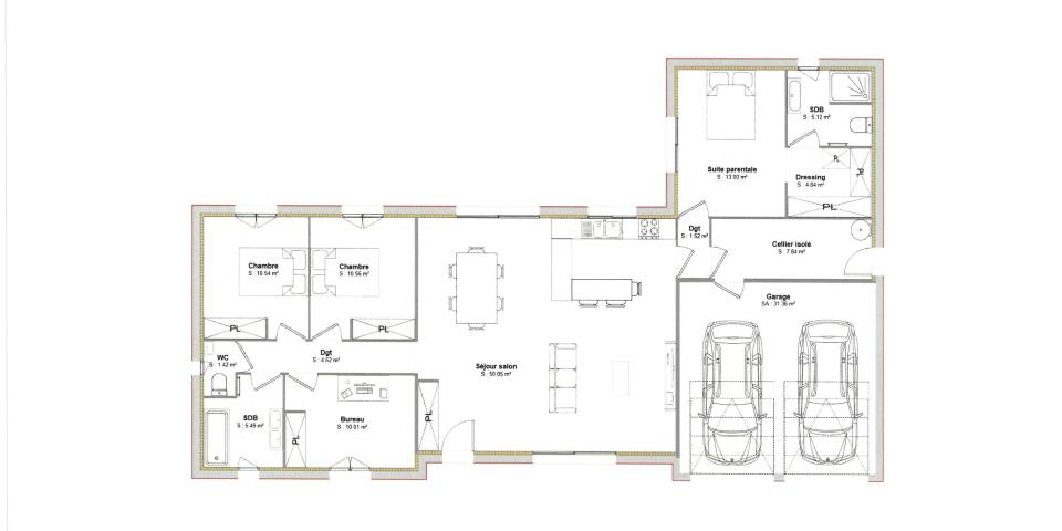
Disposant d'une surface habitable totale de 125 m2 et 31.35 m2 de garage .
Vous retrouverez dans ce modèle une entrée séparée avec emplacement pour futur rangement placard donnant accès à un espace de vie lumineux de 50 m2 avec salon/séjour et cuisine ouverte attenante au cellier et garage .
De plus, une superbe suite parentale avec salle d'eau et dressing ainsi que 2 belles chambres de 10.5 m2 avec emplacement pour futur rangement placard parfaite pour accueillir votre famille ainsi que 1 bureau de 10 m2 idéal pour le télétravail ou une activité personnelle.
Une salle d'eau moderne et un Wc séparé.
Système de chauffage en Pompe à Chaleur Air/Air par Split et appoints électriques ainsi que ballon thermodynamique.
Ce modèle avec un design intelligent alliant confort, praticité et style contemporain aux Normes RE 2020 pour une consommation énergétique optimisée.
Possibilité de personnalisation selon vos envies.
Pour plus de renseignements contactez nous par téléphone au 02.48.24.29.07 ou par mail à l'adresse maison.laure18@wanadoo.fr
ASSURANCES DOMMAGE OUVRAGE ET GARANTIE CONSTRUCTEUR COMPRISES.
A partir de 212900€ hors terrain, Voiries Réseaux Distribution, Embellissements intérieurs et extérieurs et Taxe d'aménagement.
Photos non contractuelles et tarif modifiable sans préavis.